주소복사
찜하기

토목완료된 공장부지 분양. 평당 210만

매물정보

10841
매매152,400
경기 화성시 향남읍
도로지분 면적 254.55㎡ 77평
토지면적 2,400㎡ 726평
토지

상세설명

오늘도 행복한 날이 되세요!!
--------------------------------------------
\u2606 부동산포털랜드 중개법인 \u2606
--------------------------------------------
홈페이지 :
https://pland.kr/
 







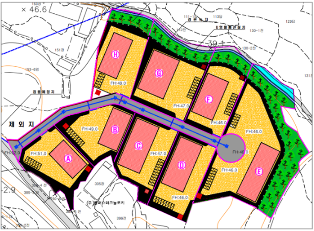
\u25cb A부지 개요
■ 용도지역 : 계획관리지역, 성장관리계획구역(산업관리)
■ 지목 : 임야
■ 토지면적 : 726평 (본부지 649평, 도로지분 77평)
■ 도로 : 너비 6m~8m 진입로


\u25cb 상세설명
■ 건축허가 후 토목완료된 공장부지
■ 진입도로 6m~8m 아스콘 포장 완료
■ 도로지분 10%, 경관녹지 무료
건축조건 분양 시 평당 370만원
 

\u25cb 분양가 : 15억 2,400만원 [210만/평]
 
 
 

--------------------------------------------
\u2606 부동산포털랜드 중개법인 \u2606
--------------------------------------------
평택에 있는 중개법인으로서 다음을 전문으로 취급합니다.
\u25cb 공장, 창고
\u25cb 투자용 토지,건물
\u25cb 사업부지
\u25cb 농지
부동산포털랜드는 언제 어디서든 항상 고객편에 서겠습니다.
대표전화 :
031) 681-4989 / 010-2622-4579
홈페이지 : https://pland.kr/
 
 
오늘도 행복한 날이 되세요!!
--------------------------------------------
☆ 부동산포털랜드 중개법인 ☆
--------------------------------------------
홈페이지 :
https://pland.kr/
 







○ A부지 개요
■ 용도지역 : 계획관리지역, 성장관리계획구역(산업관리)
■ 지목 : 임야
■ 토지면적 : 726평 (본부지 649평, 도로지분 77평)
■ 도로 : 너비 6m~8m 진입로


○ 상세설명
■ 건축허가 후 토목완료된 공장부지
■ 진입도로 6m~8m 아스콘 포장 완료
■ 도로지분 10%, 경관녹지 무료
건축조건 분양 시 평당 370만원
 

○ 분양가 : 15억 2,400만원 [210만/평]
 
 
 

--------------------------------------------
☆ 부동산포털랜드 중개법인 ☆
--------------------------------------------
평택에 있는 중개법인으로서 다음을 전문으로 취급합니다.
○ 공장, 창고
○ 투자용 토지,건물
○ 사업부지
○ 농지
부동산포털랜드는 언제 어디서든 항상 고객편에 서겠습니다.
대표전화 :
031) 681-4989 / 010-2622-4579
홈페이지 : https://pland.kr/
 
 

위치 및 주변 편의시설

전화하기 문자하기
빠른문의
닫기