주소복사
찜하기

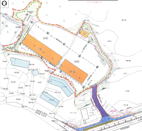
음성 금왕, 4차선변 공장부지(토목 완료)

매물정보

10388
매매314,000
충북 음성군 금왕읍
토지면적 15,209㎡ 4,601평
토지
남향 ( 주된출입구 )
계획관리지역

상세설명



\u25cb 개요

-용도지역 : 계획관리지역, 성장관리계획구역(복합형)
-토지면적 : 15,209㎡ (4,601평)
    *본부지 : 4,364평
    *도로부지 : 237평
-도로 : 4차선 대로 접함
-연면적 (건축예정)
    *공장 : 723평
    *사무실 : 63평
    *기숙사 : 60.5평
-준공일 : 24년 11월 예정
-구조 : 일반철골조
-매매가 : 31억 4천만원 (약 68만원/평)
 
\u25cb 상세설명

- 공장허가 득하여 현재 토목공사 진행중인 토지입니다.
- 4차선 대로에서 진입하며 건축면적, 건축위치는 조정 가능합니다.
- 본부지 30평, 도로 83평은 충청북도에서 임대받은 토지이며 이 중 본부지 30평은 차후 매수 가능합니다.
- 매매는 토목 완료 조건입니다.
 
 


○ 개요

-용도지역 : 계획관리지역, 성장관리계획구역(복합형)
-토지면적 : 15,209㎡ (4,601평)
    *본부지 : 4,364평
    *도로부지 : 237평
-도로 : 4차선 대로 접함
-연면적 (건축예정)
    *공장 : 723평
    *사무실 : 63평
    *기숙사 : 60.5평
-준공일 : 24년 11월 예정
-구조 : 일반철골조
-매매가 : 31억 4천만원 (약 68만원/평)
 
○ 상세설명

- 공장허가 득하여 현재 토목공사 진행중인 토지입니다.
- 4차선 대로에서 진입하며 건축면적, 건축위치는 조정 가능합니다.
- 본부지 30평, 도로 83평은 충청북도에서 임대받은 토지이며 이 중 본부지 30평은 차후 매수 가능합니다.
- 매매는 토목 완료 조건입니다.
 
 

위치 및 주변 편의시설

전화하기 문자하기
빠른문의